技术文章
TECHNICAL ARTICLES
更新时间:2025-09-30
点击次数:249
QJB-W30潜水回流泵出厂检测报告
电机功率30KW
全铜线圈电机
304不锈钢
重量350kg
自带防水密封电缆10米
配泄露和过热信号保护线

QJB-W30潜水回流泵技术说明:
QJB-W30潜水回流泵是在潜水搅拌机生产技术上开发的新型产品,该泵为二级污水处理厂混合液回流,反硝化脱氮的专业设备,亦可以用于地面排水时抽净化水,灌溉和控制水道系统,废水处理过程中再循环或泥浆抽吸回路中需要微扬程,大流量场所。
QJB-W30潜水回流泵配技术前沿的轴向运行的三叶轮,叶轮具有良好的自清洁与免震动功能。叶轮的设计同时可以满足大流量与低扬程的要求,并在轴向形成大流量,采用瑞典飞力潜水电机密封技术,确保密封安全可靠。当水进入油室后,探头侧漏系统中的湿度传感器将自动发出报警信号,以便及时查出,防止出现第二次故障。QJB-W型潜水回流泵电机绕组采用安全的过热保护工艺,一旦由于电机过载,介质温度过高或其他原因造成过热,温度传感器会在温度超过许用温度极小以前及时发出报警信号或自动关闭水泵。
QJB-W30潜水回流泵配单根导轨自动耦合系统,保证快捷的安装、提升和维护,是在消化、吸收国外同类产品技术的基础上研制成功的具有高效、防缠绕、无堵塞、自动藕合、高可靠性和自动控制等优点,在排送固体颗粒和长纤维拉圾方面,具有特殊功能。QJB-W潜水回流泵是在引进同行潜水电机生产技术基础上自行研发的产品,为二级污水处理厂混合液回流、反硝化脱氮的 专用设备,亦可用于地面排水、灌溉和废水处理 过程中再循环等需要微扬程、大流量的场所。
QJB-W型潜水回流泵微扬程、大流量,效率高,叶轮具有高性能的水力设计结构,后掠式叶片具有自洁功能,抗堵塞、防缠绕,采用新的密封材料,两道机械密封,材质为炭化钨――炭化钨,采用进口轴承,所有紧固件均为不锈钢,可以使泵安全连续运行10000小时以上。QJB-W型潜水回流泵结构紧凑,操作维护简单,安装、维修方便,使用寿命长,主机采用铸造或不锈钢充压成型结构,体积小、密度高、耐腐蚀、无噪音,设置漏电、漏水及电机过载等保护及报警装置,确保厂品的安全性与可靠性。

杜安环保QJB-W型潜水回流泵构造及工作原理:
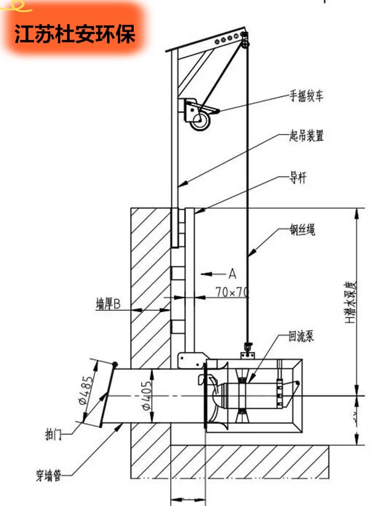
潜水回流泵由叶轮、潜水电机、导流罩、穿墙管、拍门、安装提升导杆、起吊钢绳、水下电缆、起吊架和手摇升降装置、角度转向装置、就地控制柜等组成。
潜水回流泵转动平衡自如,无卡死、停滞、振动等现象;
潜水回流泵作密封气压实验,实验压力为0.3MPa,历时5分钟无泄漏现象;
潜水回流泵采用双机械密封结构和唇形密封组成动密封系统,机械密封保证在25000小时内可靠运行而不需更换;
潜水回流泵在全浸没和潜水电机露出液面的条件下能连续工作,同时能保证在间隙运行和长期停止运行的情况下,一经开机仍能正常运行。
潜水回流泵引出电缆采用GB5013.2中YZW型橡套软电缆或性能相同的其它电缆,单台标准配置长度10m,电缆密封头采用特殊化处理,以防电缆外皮破损,渗水至电机;
潜水回流泵其表面光亮,无污损、碰伤、裂痕等现象;
潜水回流泵的油室内有足够的空间来容纳因温差引起的膨胀,并设有密封泄漏保护装置;
潜水回流泵引出电缆中双色线(黄/绿)规定为接地线,联接可靠。接地标志明显,在使用期内不易磨灭;
潜水回流泵叶轮及转子采用动平衡试验,平衡精度为G6.3;
潜水回流泵定子绕组内及上下轴承位置设有热保护开关,定子腔内设有密封泄漏保护装置。
潜水回流泵的安装导杆能保证设备自由转动、升降、调节各种角度,提升和安装搅拌机不必把池子放空。
潜水回流泵使用寿命:
潜水回流泵在规定的条件下,平均正常运行时间不小于10000小时,整机使用寿命不小于10年。

杜安环保设备(江苏)有限公司潜水回流泵配套控制箱安全操作:
一、设备操作分“就地"和“自动"两种形式。
1)自动控制。检查电源并确保通电后,将控制柜面板上的选择开关拨至“自动"位置,此时,潜污泵即由中控室进行控制,不需现场人员做任何操作。
2)304不锈钢现场控制控制。
a)检查电源,确保通电。
b)将控制柜面板上的“就地/停/自动"选择开关拨至“就地"位置。
c)按下“启动"按钮,设备运行。
d)按下“停止"按钮,设备停止运行。
e)发生故障后及时检修,待故障排除后重新通电复位运转。
二、严禁污泥泵干运行,运转时联轴器应轻重均匀,无卡住和摩擦声。
三、严禁频繁启动污泥泵,备用泵应每周至少运转一次。
四、每次维修(重新接线)后,正式开车前,一定要确认电动机的转向与泵规定方向一致。
五、每班检查泥泵是否有异常的噪音或震动。
六、运转中泥泵发出异常响声,立即停泵,启用备用泵,同时上报检修。




扫码加微信
服务热线
六合区雄州工业园区腾飞路10-11号
63582753@qq.com
Copyright © 2026杜安环保设备(江苏)有限公司 All Rights Reserved 备案号:苏ICP备2024109432号-3
技术支持:化工仪器网 管理登录 sitemap.xml